This machine fit for pallet packaging. Bottles send into this machine by conveyor, automatic counting the quantity & layering as palletizing without labor. Compare to manual style, it saves labor & cost! Furthermore, it can connect auto strapping machine as full automatic without labor
FACTORY concept-optimize your plastic containers production

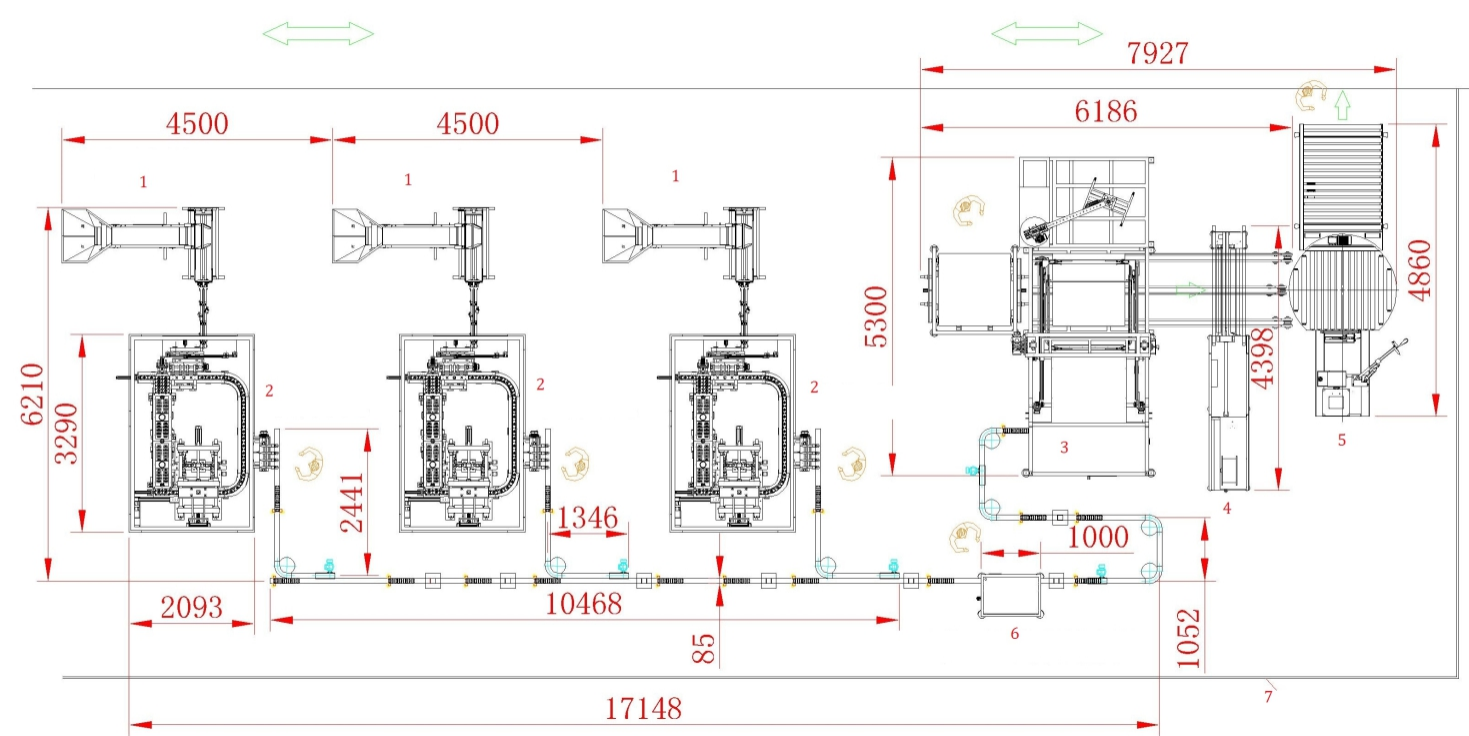
1.Appending machine;
2.Blow molding machine;
3. Full automatic palletizer machine;
4. Ribbon machine;
5. Windding machine;
6. Eight heads precision leak tester machine;
7. Machine safety fence.